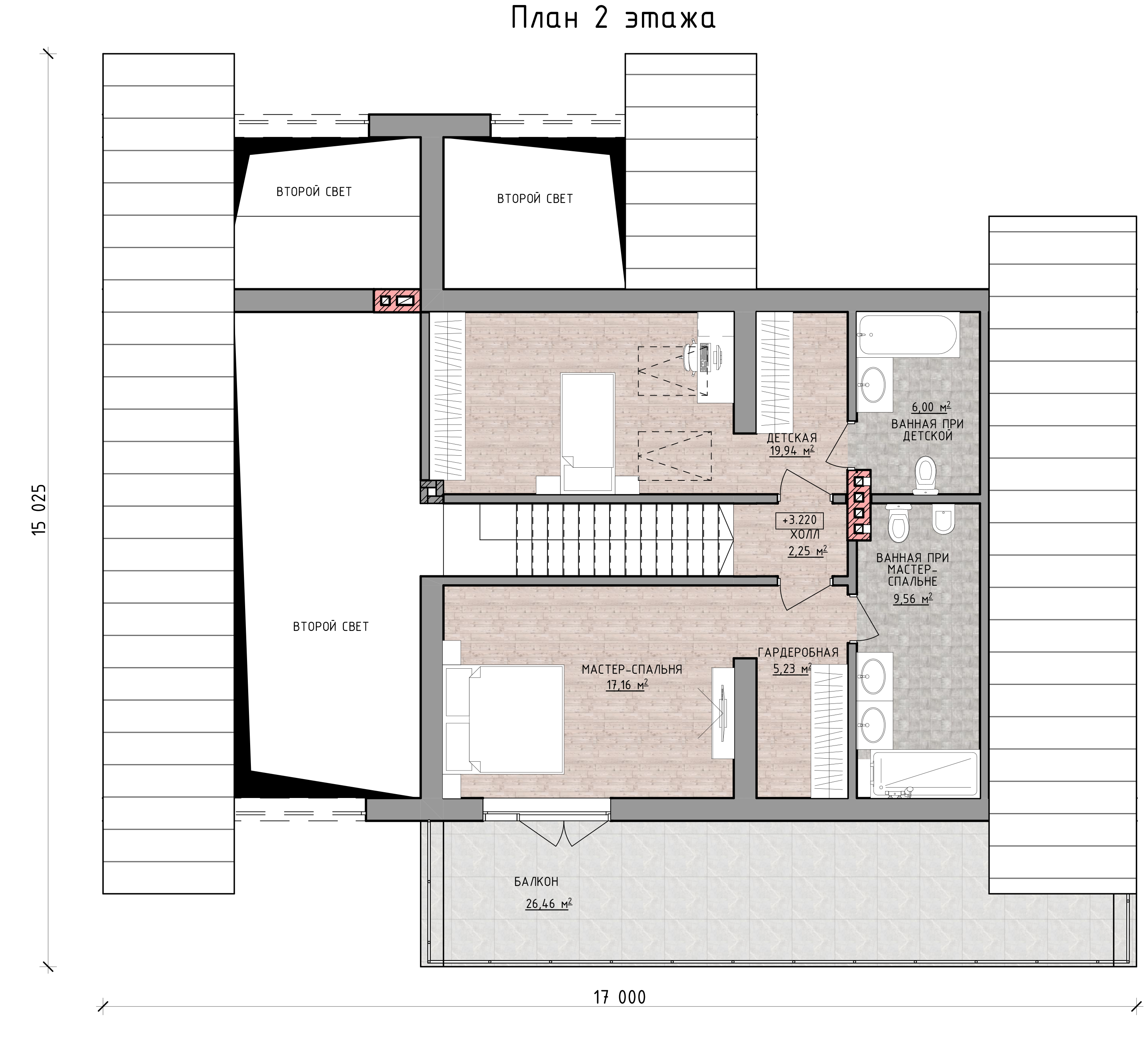
Проект ЛС-34, 283 м2
Одноэтажный дом, 283м2
- Спальня — 3
- Санузел — 2
- Материал — Газобетон / кирпич
- Габариты — 11.40 × 14.35 м.
- Срок строительства — от 120 дней
- Опции: Терраса
от 5 100 000 ₽
Планировка дома
В планировку можно внести изменения, индивидуально для вас